1425 SW Lane Street, Topeka, KS 66604

1425 SW Lane Street, Topeka, KS 66604

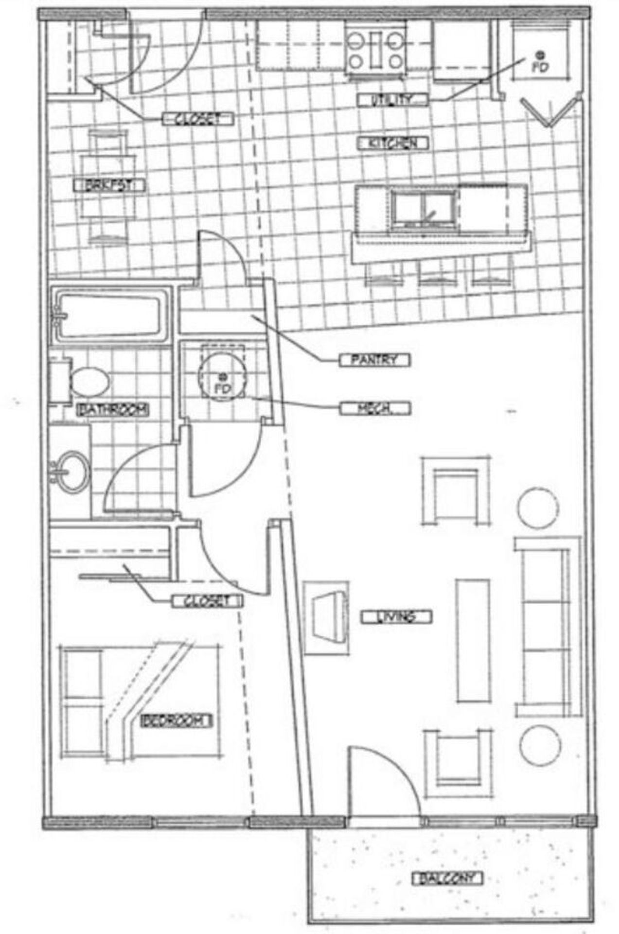
1B1B